Via Lombardia 30-38 Venturina Terme
Il progetto ha previsto la totale riqualificazione funzionale ed energetica di un compendio immobiliare degli anni ’60 con la nascita di nuovi appartamenti che si svilupperanno al piano terra e primo in un contesto di piccolo condominio con ingresso privato.
Tutti gli appartamenti sono termoautonomi con ingresso indipendente e hanno raggiunto la classe energetica “A”.
Appartamento 1 - VENDUTO
Appartamento 1
QUADRILOCALE P. TERRA CON GIARDINO PRIVATO E POSTI AUTO
L’appartamento si sviluppa al piano terra su una superficie commerciale di mq 96,00 e calpestabile di mq 81,00 con mq 100,00 circa di area esterna privata.
Entrando dal giardino privato troviamo il soggiorno con angolo cottura. Dalla zona giorno, tramite un disimpegno, si accede alle due camere singole, alla camera matrimoniale, al bagno principale finestrato, al secondo bagno e al ripostiglio. Completa la proprietà un locale tecnico e due posti auto privati.
Le finiture saranno di ottima qualità e potranno essere personalizzate presso lo showroom In & Out di Venturina.
VENDUTO
Richiedi informazioni
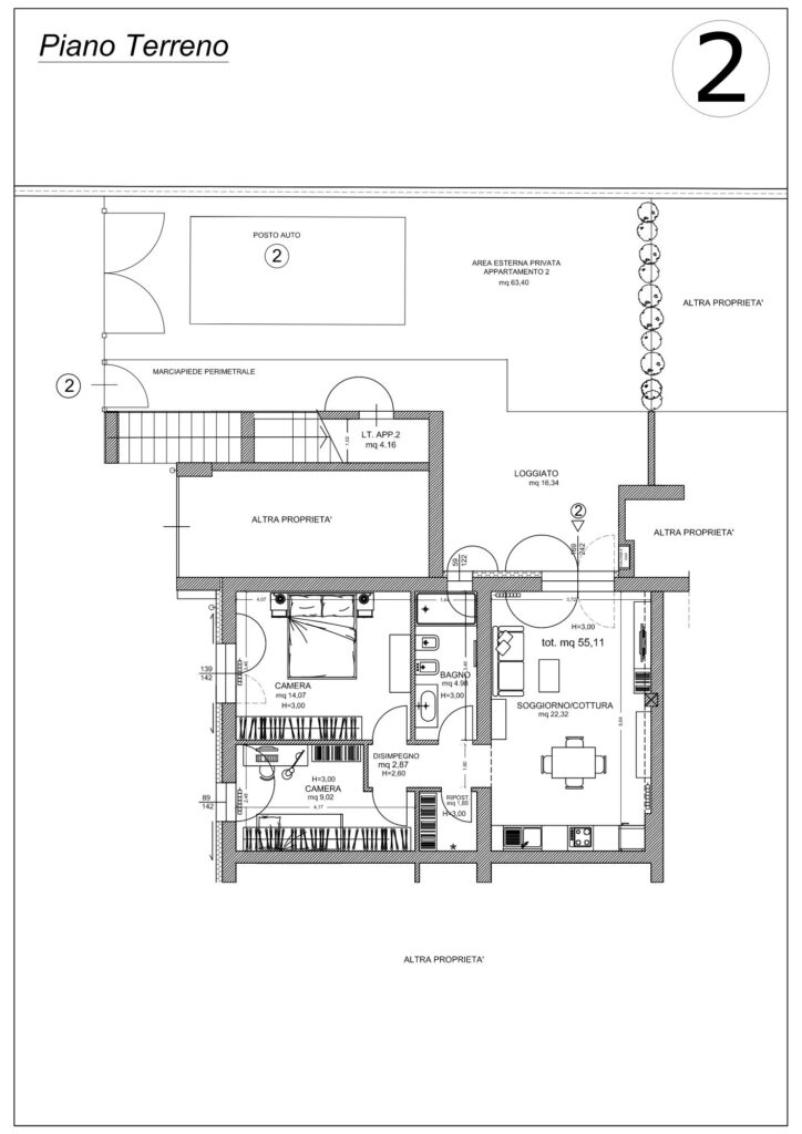
Appartamento 2
Appartamento 2
TRILOCALE P. TERRA CON GIARDINO, LOGGIATO E POSTO AUTO PRIVATO
L’appartamento si sviluppa al piano terra su una superficie commerciale di mq 66,00 e calpestabile di mq 55,25 con mq 60,00 circa di corte privata.
Entrando dal giardino privato troviamo un loggiato dal quale si accede al soggiorno con angolo cottura. Dalla zona giorno, tramite un disimpegno, si accede alla camera matrimoniale, alla camera singola, al bagno principale finestrato e al ripostiglio.
Completa la proprietà un locale tecnico e un posto auto privato.
Le finiture saranno di ottima qualità e potranno essere personalizzate presso lo showroom In & Out di Venturina.
Il costo ulteriore da pagare direttamente al notaio per l’atto di compravendita è tra € 2.600,00 ed € 3.500,00 iva compresa in base al prezzo dell’appartamento.
CONSEGNA IMMEDIATA
Prezzo: € 220.000,00 IVA 4% O 10% ESCLUSA
Richiedi informazioni
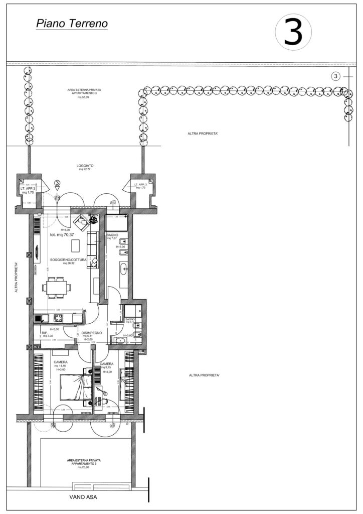
Appartamento 3 - TRATTATIVA
Appartamento 3
TRILOCALE P. TERRA CON GIARDINO, LOGGIATO E POSTO AUTO PRIVATO
L’appartamento si sviluppa al piano terra su una superficie commerciale di mq 82,00 e calpestabile di mq 70,00 con mq 89,00 circa di area esterna privata su due lati.
Entrando dal giardino privato troviamo un loggiato dal quale si accede al soggiorno con angolo cottura. Dalla zona giorno, tramite un disimpegno, si accede alla camera matrimoniale, alla camera singola e al bagno principale finestrato e al secondo bagno.
Completa la proprietà due locali tecnici e un posto auto privato.
Le finiture saranno di ottima qualità e potranno essere personalizzate presso lo showroom In & Out di Venturina.
Il costo ulteriore da pagare direttamente al notaio per l’atto di compravendita è tra € 2.600,00 ed € 3.500,00 iva compresa in base al prezzo dell’appartamento.
CONSEGNA IMMEDIATA
– IN TRATTATIVA –
Prezzo: € 255.000,00 IVA 4% O 10% ESCLUSA
Richiedi informazioni
Appartamento 4 - VENDUTO
Appartamento 4
TRILOCALE P. TERRA CON GIARDINO, LOGGIATO E POSTO AUTO PRIVATO
L’appartamento si sviluppa al piano terra su una superficie commerciale di mq 67,00 e calpestabile di mq 55,00 con mq 50,00 circa di area esterna privata.
Entrando dal giardino privato troviamo un loggiato dal quale si accede al soggiorno con angolo cottura. Dalla zona giorno, tramite un disimpegno, si accede alla camera matrimoniale, alla camera singola, al bagno principale finestrato e al ripostiglio.
Completa la proprietà un locale tecnico e un posto auto privato.
Le finiture saranno di ottima qualità e potranno essere personalizzate presso lo showroom In & Out di Venturina.
VENDUTO
Richiedi informazioni
Appartamento 5 - VENDUTO
Appartamento 5
TRILOCALE P. TERRA CON GIARDINO E POSTO AUTO PRIVATO
L’appartamento si sviluppa al piano terra su una superficie commerciale di mq 70,00 e calpestabile di mq 58,00 con mq 30,00 circa di area esterna privata.
Entrando dal giardino privato troviamo il soggiorno con angolo cottura. Dalla zona giorno, tramite un disimpegno, si accede alla camera matrimoniale, alla camera singola e al bagno principale finestrato.
Completa la proprietà un posto auto privato.
Le finiture saranno di ottima qualità e potranno essere personalizzate presso lo showroom In & Out di Venturina.
VENDUTO
Richiedi informazioni
Appartamento 6 - VENDUTO
Appartamento 6
TRILOCALE P. TERRA CON GIARDINO E POSTO AUTO PRIVATO
L’appartamento si sviluppa al piano terra su una superficie commerciale di mq 66,00 e calpestabile di mq 55,00 con mq 27,00 circa di area esterna privata.
Entrando dal giardino privato troviamo il soggiorno con angolo cottura. Dalla zona giorno, tramite un disimpegno, si accede alla camera matrimoniale, alla camera singola, al bagno principale finestrato e al ripostiglio.
Completa la proprietà un posto auto privato.
Le finiture saranno di ottima qualità e potranno essere personalizzate presso lo showroom In & Out di Venturina.
Il costo ulteriore da pagare direttamente al notaio per l’atto di compravendita è tra € 2.600,00 ed € 3.500,00 iva compresa in base al prezzo dell’appartamento.
CONSEGNA IMMEDIATA
VENDUTO
Richiedi informazioni
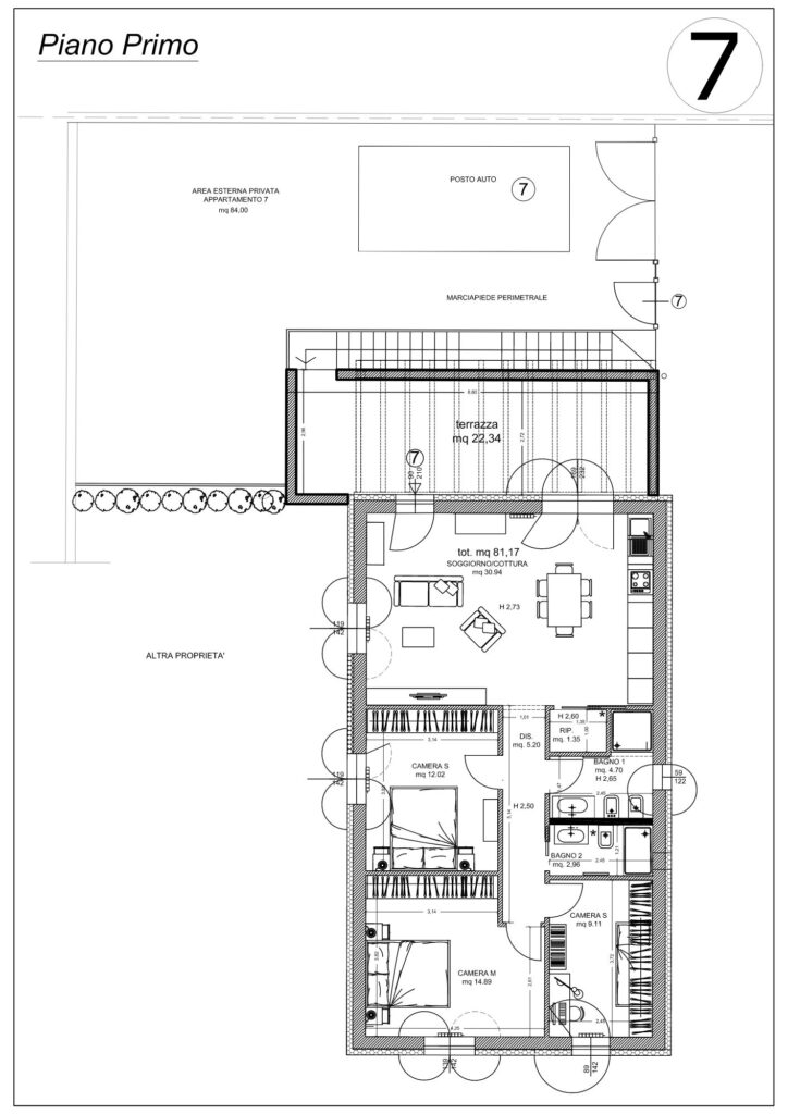
Appartamento 7
Appartamento 7
QUADRILOCALE P. PRIMO CON GIARDINO, TERRAZZA, GARAGE E POSTO AUTO PRIVATO
L’appartamento ha accesso indipendente da scala privata e si sviluppa al piano primo su una superficie commerciale di mq 96,00 e calpestabile di mq 81,00 con mq 74,00 di area esterna privata.
Dalle scale si accede ad un’ampia terrazza dopo la quale troviamo il soggiorno con angolo cottura e ripostiglio/dispensa. Dalla zona giorno, tramite un disimpegno, si accede alle due camere singole, alla camera matrimoniale, al bagno principale finestrato e al secondo bagno.
Completa la proprietà un garage di mq 22,50, un locale tecnico e un posto auto privato.
Le finiture saranno di ottima qualità e potranno essere personalizzate presso lo showroom In & Out di Venturina.
Il costo ulteriore da pagare direttamente al notaio per l’atto di compravendita è tra € 2.600,00 ed € 3.500,00 iva compresa in base al prezzo dell’appartamento.
CONSEGNA IMMEDIATA
Prezzo: € 348.000,00 IVA 4% O 10% ESCLUSA
Richiedi informazioni
Appartamento 8 - VENDUTO
Appartamento 8
TRILOCALE P. PRIMO CON TERRAZZA, LOGGIATO E POSTO AUTO PRIVATO
L’appartamento è sito al piano primo e si sviluppa su una superficie commerciale di mq 65,00 e calpestabile di mq 55,00.
Tramite una scala condominiale ed un ballatoio si accede ad un loggiato privato e al soggiorno con angolo cottura. Dalla zona giorno, tramite un disimpegno, si accede alla camera matrimoniale, alla camera singola e al bagno.
Completa la proprietà un locale tecnico e un posto auto privato.
Le finiture saranno di ottima qualità e potranno essere personalizzate presso lo showroom In & Out di Venturina.
VENDUTO
Richiedi informazioni
Appartamento 9 - VENDUTO
Appartamento 9
TRILOCALE P. PRIMO CON TERRAZZA, LOGGIATO E POSTO AUTO PRIVATO
L’appartamento è sito al piano primo si sviluppa su una superficie commerciale mq 64,00 e calpestabile di mq 55,00.
Tramite una scala condominiale ed un ballatoio si accede ad un loggiato privato e al soggiorno con angolo cottura. Dalla zona giorno, tramite un disimpegno, si accede alla camera matrimoniale, alla camera singola e al bagno.
Completa la proprietà un locale tecnico.
Questo appartamento non è provvisto di posto auto privato quindi si dovrà parcheggiare su strada pubblica.
Le finiture saranno di ottima qualità e potranno essere personalizzate presso lo showroom In & Out di Venturina.
VENDUTO
Richiedi informazioni
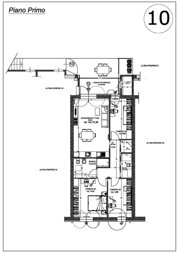
Appartamento 10
Appartamento 10
QUADRILOCALE P. PRIMO CON TERRAZZA, LOGGIATO E GARAGE PRIVATO CON SOLARE TERMICO E FOTOVOLTAICO
L’appartamento ha accesso indipendente da scala privata e si sviluppa al piano primo su una superficie commerciale di mq 82,00 e calpestabile di mq 72,00.
Dalle scale si accede ad un’ampia terrazza con loggiato dopo la quale troviamo il soggiorno con angolo cottura e ripostiglio/dispensa. Dalla zona giorno, tramite un disimpegno, si accede alle due camere singole, alla camera matrimoniale, al bagno principale finestrato e al secondo bagno.
Completa la proprietà un garage di mq 15,00, un locale tecnico e un posto auto privato.
Le finiture saranno di ottima qualità e potranno essere personalizzate presso lo showroom In & Out di Venturina.
Il costo ulteriore da pagare direttamente al notaio per l’atto di compravendita è tra € 2.600,00 ed € 3.500,00 iva compresa in base al prezzo dell’appartamento.
CONSEGNA IMMEDIATA
Prezzo: € 275.000,00 IVA 4% O 10% ESCLUSA
Richiedi informazioni
Appartamento 11 - VENDUTO
Appartamento 11
TRILOCALE P. PRIMO CON TERRAZZA, LOGGIATO E POSTO AUTO PRIVATO
L’appartamento è sito al piano primo si sviluppa su una superficie commerciale mq 70,00 e calpestabile di mq 60,00.
Tramite una scala condominiale ed un ballatoio si accede ad una terrazza con loggiato privato e da esso al soggiorno con angolo cottura. Dalla zona giorno, tramite un disimpegno, si accede alla camera matrimoniale, alla camera singola, al bagno e al ripostiglio. Completa la proprietà un locale tecnico e un posto auto.
Le finiture saranno di ottima qualità e potranno essere personalizzate presso lo showroom In & Out di Venturina.
VENDUTO
Richiedi informazioni
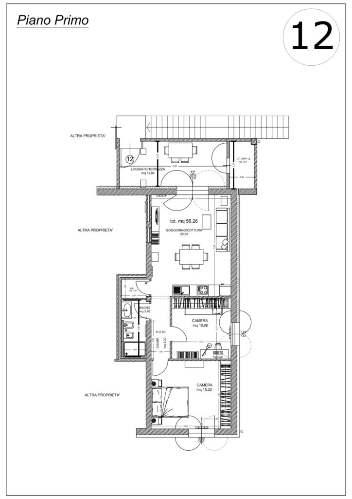
Appartamento 12
Appartamento 12
TRILOCALE P. PRIMO CON TERRAZZA E LOGGIATO PRIVATO
L’appartamento è sito al piano primo e si sviluppa su una superficie commerciale di mq 67,00 e calpestabile di mq 56,00.
Tramite una scala condominiale ed un ballatoio si accede ad un loggiato privato e al soggiorno con angolo cottura. Dalla zona giorno, tramite un disimpegno, si accede alla camera matrimoniale, alla camera singola, al bagno e al ripostiglio.
Completa la proprietà un locale tecnico e un posto auto privato.
Le finiture saranno di ottima qualità e potranno essere personalizzate presso lo showroom In & Out di Venturina.
Il costo ulteriore da pagare direttamente al notaio per l’atto di compravendita è tra € 2.600,00 ed € 3.500,00 iva compresa in base al prezzo dell’appartamento.
CONSEGNA IMMEDIATA
Prezzo: € 198.000,00 IVA 4% O 10% ESCLUSA
Richiedi informazioni
GARAGE - TRATTATIVA
Garage
Garage pertinenziale di mq 14,00 calpestabili di nuova realizzazione.
CONSEGNA IMMEDIATA
– IN TRATTATIVA –
Prezzo: € 25.000,00 IVA 4% O 10% ESCLUSA
Richiedi informazioni
Agevolazioni Fiscali
Gli acquirenti possono detrarre il 50% del 25% della spesa sostenuta per l’acquisto iva compresa.
Esempio: Acquistando uno degli appartamenti sopra descritti, pagando € 200.000,00 + IVA al 4% (prima casa), per un totale di € 208.000,00, il cliente ha diritto alla detrazione del 50% calcolata sul 25% del costo dell’immobile acquistato IVA compresa, in questo esempio pari ad € 26.000,00 [(208.000)×25%×50%] che sarà detratto dall’imposta sul reddito delle persone fisiche. Anche in questo caso la detrazione si ripartisce in 10 rate annuali di pari importo ovvero € 2.600,00 ogni anno.
Bonus mobili con detrazione al 50% fino ad € 5.000,00 dopo l’acquisto dell’appartamento fino al 31.12.25.
Il costo ulteriore da pagare direttamente al notaio per l’atto di compravendita è tra € 2.600,00 ed € 3.500,00 iva compresa in base al prezzo dell’appartamento.
Attività di interesse sportivo/culturale in un raggio di ca 50Km:
- Aviosuperficie
- Talassoterapia
- 2 Terme Romane
- Birdwatching
- Golf
- Diving
- Trekking
- 5 Porti Turistici
- 3 Presidi Ospedalieri
- Traghetti da e per Isola d’Elba in partenza ogni Ora
- Musei a cielo aperto
Nei dintorni
Suvereto
Piccolo borgo medievale, le cui origini risalgono a prima dell’anno Mille, appoggiato alle pendici delle colline che dominano il mare e la Costa degli Etruschi, nella verde vallata attraversata dal Cornia, ricco di storia e di arte, Suvereto è un vero gioiello.
Il paese racchiude, dentro alle antiche mura, vicoli lastricati su cui si affacciano case di pietra, palazzi storici, chiese e chiostri. Il suo fascino è racchiuso però anche nelle persone che lo abitano, mantenendolo vivo e reale.
Ogni lunedì mattina, sotto le mura, si tiene un piccolo mercato locale e in estate si susseguono eventi dedicati alla gastronomia e i vini locali, il più famoso ‘Calici di Stelle’ (10 Agosto) richiama numerosissimi amanti del vino (www.comune.suvereto.li.it). Tra le feste più rinomate: le Serate Medievali (Luglio) e la Sagra del Cinghiale (prima settimana di Dicembre, www.suvereto.net).
Nei ristoranti del borgo potrete assaggiare i piatti della tradizione accompagnati da ottimi vini locali.
Mare e Spiagge
Ci troviamo nel bel mezzo dei più variegati chilometri di costa Toscana che vanno da Livorno a Grosseto.
Soggiornando in Val di Cornia potrete godere del fresco relax della campagna raggiungendo altresì velocemente le spiagge di: San Vincenzo, parco di Rimigliano, il golfo di Baratti, il parco della Sterpaia, Mortelliccio, Carbonifera, Torre Mozza, Follonica, Cala Violina.
Dal porto di Piombino (30 minuti in auto) è possibile raggiungere l’Isola d’Elba anche per una gita in giornata, infatti in estate le navi partono ogni 30 minuti circa dalle 7.00 alle 21.00.
Borghi, Archeologia, Città d'arte
La Val di Cornia è stata terra Etrusca e poi Romana, le tracce storiche sono ben visibili visitando i borghi di Suvereto, Campiglia Marittima, Piombino, il Golfo di Baratti e Populonia.
Con la propria auto è poi possibile raggiungere: Bolgheri, Castagneto Carducci, Massa Marittima, Volterra, San Galgano, Pisa, Siena e Firenze.
In treno dalla Stazione di Campiglia Marittima Pisa dista circa 1 ora, Firenze circa 2 ore e Roma circa 2 ore e mezzo.
Terme
Primavera e autunno sono le stagioni migliori per godere dell’offerta Termale della zona.
Potrete scegliere tra le Terme di Sassetta, nascoste nei boschi di Cerro dall’ambiente raccolto ed Ecocompatibile e le Terme del Calidario a Venturina con l’ampia vasca all’aperto e svariati trattamenti corpo.
Wine
Se siete degli intenditori o appassionati di vino potrete programmare la visita a molte rinomate cantine del circuito “Strada del Vino Costa degli Etruschi” di cui fanno parte le denominazioni: Suvereto, Val di Cornia, Terratico di Bibbona, Montescudaio, Bolgheri, Isola d’Elba.
Passeggiate - Trekking - Bici
Suvereto e i suoi dintorni sono conosciuti fra gli appassionati di trekking per i numerosi sentieri percorribili a piedi o in bici, dalla passeggiata semplice agli itinerari più impegnativi.
Da Suvereto partono i sentieri per Belvedere e Monte Calvi. In 10 minuti di auto si può raggiungere il Parco di Montioni dove in una splendida cornice verde, si snodano nella macchia mediterranea e nei boschi folti di querce, fitti sentieri percorribili a piedi, in bicicletta ed a cavallo, tra miniere e testimonianze storiche.
